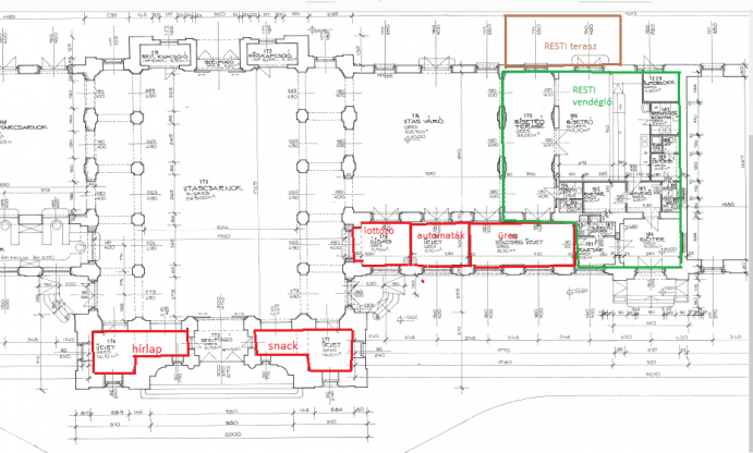
Társaságunk a csatolt alaprajzon megjelölt helyiségek és területek 2023.01.01-től történő bérbeadáshoz keresi azokat a tevékenységeket, szolgáltatásokat, amelyekkel bővíthető, kiegészíthető azon utaskiszolgáló funkciók köre, amelyek jelenleg is rendelkezésre állnak.

Várjuk a Vállalkozók javaslatait, elképzeléseit, látványterveit 2022.07.31-ig elektronikusan az ingatlangazdalkodas [at] gysev [dot] hu e-mail címre vagy kérjük dobják be írt, nyomtatott formában, lezárt borítékban Szombathely állomáson az Utascsentrumban kihelyezett gyűjtődobozba.

Szombathely állomás bérelhető helységek